Пожарные резервуары
![]() |
| ||||||||
Пожарные резервуары представляют собой специализированные ёмкости для долговременного хранения запаса воды на случай пожара или возгораний. Применяются на промышленных, жилых и коммерческих объектах, где централизованный водопровод отсутствует или не обеспечивает нормативный расход для пожаротушения. Выпускаются в подземном и наземном исполнении и могут быть произведены из стали, стеклопластика или полиэтилена. Установка осуществляется в количестве от двух единиц емкостного оборудования, согласно норм Республики Беларусь. Использование воды для других целей запрещено нормативными требованиями пожарной безопасности.
Резервуары противопожарного запаса воды изготавливаются в соответствии с «Техническими требованиями» (конструктивные решения приняты согласно ТП 704-1-158.83 ÷ 704-1-164.83).
Cтандартные характеристики реализуемых пожарных резервуаров
Подберем любой объем в других габаритах, при стесненных условиях размещения резервуаров для нужд пожаротушения.
| Объём, м³ | Диаметр, мм | Длина, мм | Толщина корпуса/торцов, мм | Масса, тн |
|---|---|---|---|---|
| 20–25 | 2700 | 3500–4300 | 4/5 | 2,0–2,28 |
| 30 | 2900 | 4550 | 4/5 | 2,5 |
| 40–60 | 2950 | 6000–9000 | 4/5 | 3,15–4,3 |
| 70–80 | 3200 | 9000–10500 | 4/5 | 4,75–5,3 |
| 90–110 | 3300 | 10550–12900 | 4/5 | 5,44–6,5 |
| 120–140 | 3500 | 13500–14800 | 5/5 | 8,24–8,98 |
| 150–160 | 3600 | 14800–15750 | 5/5 | 9,28–9,72 |
| 170 | 3800 | 15000–16000 | 5/5 | 10,1–10,77 |
| 190 | 3900 | 16000 | 5/5 | 11,1 |
| 200 | 4000 | 16000 | 5/5 | 11,4 |
Приняв к сведению предоставленные параметры, либо используя проектную документацию заказчика, ООО «БелАкваПром инжиниринг» осуществит консультационную поддержку и произведет поставку и шефмонтаж изготовленных под заказ противопожарных емкостей для хранения воды по низким ценам и в срок.

Классификация пожарных резервуаров по способу размещения
Подземные стальные пожарные резервуары являются наиболее распространенным типом противопожарных емкостей, обеспечивающим защиту от промерзания и экономию полезной площади объекта непосредственно на поверхности грунта. Конструкция подземных резервуаров предусматривает усиленную гидроизоляцию с применением битумно-полимерных мастик и защитных покрытий, устойчивых к воздействию грунтовых вод и агрессивных сред. Глубина заложения определяется климатическими условиями региона и составляет не менее 0,5 метра ниже уровня промерзания грунта. Наземные резервуары применяются в случаях высокого уровня грунтовых вод или при необходимости быстрого доступа для технического обслуживания, при этом требуют дополнительного утепления и обогрева в зимний период для предотвращения замерзания воды.
Конструктивные элементы и техническое оснащение
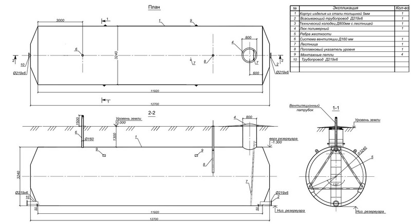
Стандартная комплектация резервуаров противопожарного запаса воды включает следующие элементы: входной патрубок диаметром 100-200 мм для заполнения резервуара, всасывающий патрубок диаметром 150-300 мм для подключения пожарных насосов, переливной патрубок для отвода избыточной воды, дренажный патрубок для опорожнения, люк-лаз диаметром 600 мм для доступа внутрь резервуара при обслуживании. Дополнительно устанавливаются датчики уровня воды, системы аварийной сигнализации при снижении уровня ниже критического, устройства для предотвращения замерзания воды в виде электрических или паровых подогревателей. Вентиляционные устройства обеспечивают циркуляцию воздуха и предотвращают образование вакуума при опорожнении резервуара или избыточного давления при заполнении.

Виды пожарных резервуаров
Следуя законодательным актам и нормативным документам, в Республике Беларусь применяются пожарные резервуары, изготовленные из:
- Стали
- Полиэтилена
- Стеклопластика
Пожарные резервуары из стали
Заказываемые у нас горизонтальные пожарные резервуары производятся из стали марки Ст3сп по ГОСТ 380-2005 объемом до 200 м3.
Стандартная толщина стального листа при производстве резервуаров составляет 4-6мм. Как правило наружная окраска выполняется двухкомпонентной эпоксидной эмалью ЭП-152 по грунту ЭП-045 , внутренняя окраска — эмаль ХС-759 по грунту ХС-059. Антикоррозийное покрытие резервуаров может быть использовано любое по пожеланию заказчика.
Толщина антикоррозийного покрытия согласно техническим требованиям составляет 300 мкм.
Пожарные подземные резервуары, поставляемые нашей компанией, имеют высокие эксплуатационные свойства и характеристики. А также, продолжительный срок службы. Место установки определяется проектной документацией.
Диаметр емкости может составлять до 4-х метров. Конструкция может быть дополнительно усилена, исходя из технологических особенностей объекта.
Пожарные резервуары из полиэтилена
Данный тип емкостей изготавливается из высококачественного полиэтилена. Кольцевая жесткость которого находится в пределах от SN2 до SN8. Что позволяет выдерживать нагрузку при подземном монтаже на глубине до 10 метров, а также при наземной (напольной) установке.
Объем емкостей
Общий объем пожарных резервуаров, устанавливаемых на объекте, рассчитывается исходя из комплекса следующих параметров:
- Степень возможного пожара
- Число объектов, подлежащих тушению в случае возгорания
- Количество одновременно подключаемых водозаборных устройств
- Возможность использования мобильных средств тушения пожара
- Рекомендации и требования пожарных норм для объектов соответствующего типа.


